汽车轻量化可以起到节能减排、保护环境的作用。汽车质量每减小100kg,每升汽油可多行驶1km。客车车身质量占客车总质量的40%-60%。因此,车身轻量化工作极其重要。目前,车身结构轻量化方法主要包括拓扑优化、截面优化、厚度优化等。
目前,客车骨架结构优化一般仅采用一种方法,未见综合利用拓扑优化、截面及厚度优化方法;针对客车骨架型材截面尺寸优化一般采用一维梁单元模型,未见利用二维壳单元模型。本文建立某小型客车车身骨架隐式参数化模型,确认参数化模型精度满足技术要求后,对其侧围骨架进行拓扑优化,寻求局部最优结构;然后基于拓扑优化的壳单元模型,对车身骨架型材的截面尺寸和厚度同时优化,并进行强度校核。最终在满足刚度、强度及模态指标要求前提下,其车身骨架实现降重26.7kg。
1小型客车车身骨架轻量化路线
某小型客车车身骨架是由等截面矩形铝型材拼焊而成的空间桁架结构,长4372mm,宽1864mm,高2115mm。由于传统有限元模型无法实现型材截面尺寸参数化变更;显式参数化有限元模型可以通过移动网格节点坐标实现截面尺寸变更,但很难实现截面尺寸较大变更和结构间复杂连接关系的更新。
sfe.concept建立的隐式参数化有限元模型,使用基点的位置、基线的曲率和截面的形状3种参数来控制型材截面尺寸及形状,并通过映射实现结构间的连接关系,保证了其连接关系的稳定性和模型整体的连续性[9-12]。隐式参数化模型在建模过程中简化了圆角、孔和加强筋等局部几何特征,而传统有限元模型简化较少,更接近实际情况。因此,该小型客车骨架轻量化设计路线如图1所示。首先,建立该小型客车传统有限元模型作为确认标准,然后再建立该客车的隐式参数化有限元模型,并计算两种有限元模型的部分性能值予以对比,以确认隐式参数化有限元模型的精度。再基于隐式参数化有限元模型开展车身局部结构拓扑优化、型材截面和厚度优化,以降低车身重量;最后校核整车结构强度,确定轻量化方案。
图1某小型客车车身骨架轻量化设计路线
2某小型客车车身结构轻量化设计
2.1隐式参数化模型建模及性能计算
小型客车车身骨架传统有限元模型系用壳单元划分网格,单元尺寸5mm,采用单元共节点方式模拟焊接,整车传统有限元模型壳单元342004个,节点335881个。
使用sfe.concept软件建立该客车骨架的隐式参数化有限元模型。步骤如下:以车身局部结构为例,如图2所示,选定梁的端点定义基点1和2,连接基点1和2,形成基线1,根据型材的空间走向,调整基线的曲率,依据原型材结构定义截面1和3,通过上述基点、基线及截面定义①号型材,由于①号型材为弯曲件,需在中间增加截面2,保证①号型材在弯曲处与原结构相同。②号型材定义同①号型材,再将①号型材与②号型材的焊接边进行映射,以保证①号型材与②号型材连接关系。结构搭建完成后,利用sfe.concept软件自动生成网格,进而完成①②号型材隐式参数化有限元模型搭建。通过控制基点、基线或者截面实现结构变化,结构变化后重新生成新结构的网格。
图 2 隐式参数化有限元模型建立示意图
应用上述方法,搭建的该小型客车车身骨架隐式参数化模型。包括的 573 个基点,356 根基线和 1320 个基础截面,356 根梁,705 组映射关系。网格化后参数化有限元模型含壳单元337256 个,壳单元尺寸 5mm,节点 331173 个,车身隐式参数化有限元模型如图 3 所示。
图 3 车身骨架参数化有限元模型示意图
弯曲刚度、扭转刚度、一阶扭转模态、重量是评价小巴车身骨架的关键性能指标。该参数化有限元模型与传统有限元模型的这些指标的计算结果如表 1 所示,可以看出,相对与传统有限元模型,参数化有限元模型的误差≤1%,满足后续分析要求。
表 1 小型客车车身骨架性能
2.2 侧围局部拓扑优化
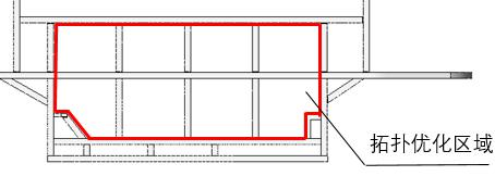
考虑到装配、布置限制,本文选取受限小的左侧围结构进行局部拓扑优化。考虑地板与侧围结构限制关系,确定优化区域如图 4 所示。
图 4 侧围拓扑优化设计区域
为避免多目标优化时,弯曲刚度、扭转刚度、一阶扭转频率权重系数分配的不合理,依据工程实际要求,采用单目标多约束优化方式求解满足扭转刚度、弯曲刚度、一阶扭转频率要求的最轻结构,即构建的优化模型如下所示:find ρ = ρ1, ρ2⋯⋯ρn
综合考虑型材规格、焊接工艺,附件安装等限制,侧围拓扑优化后工程结构设计如图 5所示。拓扑优化后,车身骨架扭转刚度提升2.6%;弯曲刚度下降 1.6%,但仍满足要求,一阶扭转模态提升 7.6%;质量降低 7.7kg。
图 5 侧围拓扑优化结果及工程结构设计
2.3 车身骨架型材截面及厚度优化
基于拓扑优化结构,选取车身骨架型材截面及厚度作为优化变量;仍以前文的扭转刚度、弯曲刚度和一阶扭转频率要求为约束条件,目标为小巴车身骨架重量最轻。
2.3.1 变量选取
小巴车身骨架主要由矩形管型材拼焊而成,其截面如图 6 所示。为避免局部结构应力集中,通常搭接两根型材在某一方向上等尺寸,图示中④方案搭接为最佳方案(两个型材截面高度一致,都为 50mm)。
图 6 型材截面及搭接关系示意图
从车身骨架中选取 99 根型材,考虑型材位置与规格,将该 99 根型材分成 23 组,如图7 所示。考虑相邻型材之间截面尺寸单方向的一致性,将型材高度 w 或宽度 b 之一作为截面优化变量,壁厚 t 作为厚度优化变量,合计 46个变量。同时,为节约成本,不额外增加型材规格,截面和厚度变量值根据现有型材库选取。
图 7 变量位置示意图
2.3.2 优化流程搭建
基于响应面法搭建近似模型,通过模拟退火算法进行寻优。首先,采用优化拉丁超立方方法生成截面尺寸和壁厚变量的试验设计样本。利用 isight软件驱动参数化模型获得样本点计算模型 500个,提交给 nastran 软件计算其扭转刚度、弯曲刚度、一阶频率和质量。
然后,基于样本的弯曲、扭转刚度及一阶扭转刚度模态和重量信息,构建响应面模型,采用交叉验证方法进行误差分析,其中一阶扭转频率精度为 0.97,其余 3 项精度均为 0.99,模型精度满足要求(精度≥0.9)。
最后,采用自适应模拟退火方法,寻求刚度模态满足要求的重量最小的截面及厚度组合。优化模型如下所示。
式中:var 为设计变量;s1, s2⋯s23为 23 个截面尺寸变量,t1, t2, ⋯t23为 23 个壁厚尺寸变量;其余参数同 2.2 节。2.3.3 优化结果
如图 8 所示,经 2568 次迭代优化计算,在扭转刚度、弯曲刚度、一阶扭转频率性能满足要求的前提下,实现质量降低 19.2kg,将各变量优化值代入隐式参数化有限元模型生成优化后的隐式参数化有限元模型,计算其关键性能指标,结果如表 2 所示。
图 8 小巴骨架重量优化
表 2 截面、壁厚优化的车身骨架性能指标
2.4 整车优化方案强度校核及改进
通过上述综合优化方案,车身骨架共计减重 26.9kg。将电池、内外饰、座椅等部件重量简化为集中质量并用 rbe3 单元连接到该车身骨架模型中,以保证该模型总重、局部的重量分布以及质心位置与实际一致,形成小型客车全内饰有限元模型。基于该模型验证优化方案强度。经分析,满载弯曲工况下,最大应力车门铰链安装处,为 260mpa,高于铝型材 6061
的屈服极限 240mpa,其它位置满足强度要求。
通过在门铰链安装局部增加 2mm 厚加强板增重 0.2kg,最大应力降低为 137mpa,满足强度要求。
最终,该小客车车身骨架在满足性能及强度要求的前提下,降重 26.7kg。3 结束语本文建立小客车车身骨架隐式参数化有限元模型,与传统有限元模型进行对比,保证参数化有限元模型的精度。以隐式参数化有限元模型为基础进行拓扑优化、同时进行截面尺寸及壁厚优化,并在已有型材库选取型材规格,在保证扭转刚度、弯曲刚度、一阶扭转频率满足要求的前提下进行车身骨架轻量化设计,最终,通过强度校核,实现降重 26.7kg。本文仅介绍前期结构设计中应用轻量化路线的降重效果,后续会结合实车试验做进一步研究。
2025-12-05
[行业资讯] simulia简介-abaqus代理经销商思茂信息
2025-12-05
[行业资讯] 如何合理选购abaqus软件并获取报价?达索代理商思茂信息
2025-12-05
[行业资讯] 思茂信息亮相2025省博士创新站活动 共探产学研新路径
2025-12-02
[cst] cst软件探索eft虚拟测试:从iec标准到3d仿真实战
2025-12-01
[abaqus] abaqus中理想弹塑性模型和弹塑性硬化模型区别
2025-11-28
2025-11-28
2025-11-28
[abaqus] 上课啦!达索系统 simulia abaqus pcb仿真
2025-11-26
[cst] 无参优化器:利用cst和tosca进行拓扑优化之单极天线(
2025-11-26
2023-08-29
2023-08-24
[abaqus] abaqus如何建模?abaqus有限元分析教程
2023-07-07
[abaqus] 有限元分析软件abaqus单位在哪设置?【操作教程】
2023-09-05
[abaqus] abaqus软件中interaction功能模块中的绑定接
2023-07-19
[abaqus] abaqus怎么撤回上一步操作?abauqs教程
2024-05-01
[abaqus] abaqus里面s11、s12和u1、u2是什么意思?s和
2023-08-30
[abaqus] abaqus单位对应关系及参数介绍-abaqus软件
2023-11-20
[abaqus] abaqus软件教程|场变量输出历史变量输出
2023-07-18
[abaqus] abaqus中的s、u、v、e、cf分别是什么意思?
2024-05-11
[行业资讯] simulia简介-abaqus代理经销商思茂信息
2025-12-05
2025-12-05
[行业资讯] 如何合理选购abaqus软件并获取报价?达索代理商思茂信息
2025-12-05
[行业资讯] 思茂信息亮相2025省博士创新站活动 共探产学研新路径
2025-12-02
[行业资讯] 正版abaqus全国代理商:思茂信息——达索授权认证
2025-11-25
[行业资讯] 怎么联系cst studio suite代理商?达索sim
2025-11-25
2025-11-24
[行业资讯] 广东有限元分析软件abaqus采购指南-认准达索授权思茂信
2025-11-21
[行业资讯] 达索abaqus、cst代理商采购流程-指定授权代理商思茂
2025-11-21
[行业资讯] 广东2025半导体及零部件学会发展论坛落幕,广州思茂信息获
2025-11-20
地址: 广州市天河区天河北路663号广东省机械研究所8栋9层 电话:020-38921052 传真:020-38921345 邮箱:thinks@think-s.com
博天堂登陆 copyright © 2010-2023 广州思茂信息科技有限公司 all rights reserved. 粤icp备11003060号-2